BÖLÜM 9
AHŞAP BİNALAR İÇİN DEPREME DAYANIKLI TASARIM KURALLARI 
 
 
9.1. KAPSAM

Deprem bölgelerinde hem düţey, hem de yatay yükler için taţýyıcı duvarları ve döşemeleri ahşap iskeletli olarak yapılan ahşap binaların veya bina türü yapıların tasarımı, bu konuda yürürlükte olan ilgili standart ve yönetmeliklerle birlikte, öncelikle bu bölümde belirtilen kurallara göre yapılacaktır. Ahşap binaların temellerine ilişkin kurallar Bölüm 12’de verilmistir.


9.2. GENEL KURALLAR

9.2.1 - Ahşap binaların boyutlandırılması için bu bölümde verilen tüm kurallara uyulacak ve Bölüm 6’ya göre ayrıca deprem hesabı yapılmayacaktır.

9.2.2 - Ahşap binalar bütün deprem bölgelerinde, bodrum katı hariç olmak üzere en fazla iki katlı olarak yapılacaktır.

9.2.3 - Ahţap binalarýn, varsa bodrum katları, Bölüm 10’da verilen kurallara göre yığma kargir olarak yapılacaktır. Zemin katlar da, Bölüm 10’a göre yığma kargir olarak yapılabilir.

9.2.4 - Ahşap binalarda bodrum kat dışında her bir katın yüksekliği, döşeme üstünden döşeme üstüne 3 m’den fazla olmayacaktır. Bodrum kat yapılması durumunda, bu katın yüksekliği 2.40 m’den fazla olmayacaktır.

9.2.5 - Ahşap binaların taşıyıcı duvarları, planda olabildiğince düzenli ve ana eksenlere göre simetrik veya simetriğe yakın biçimde yerleţtirilecektir. Tüm katlarda taşıyıcı duvarlar üstüste gelecek şekilde düzenlenecektir. Kısmi bodrum yapılmasından olabildiğince kaçınılmalıdır.
 

9.3. TAŢIYICI DUVARLAR

9.3.1. Duvar Taşıyıcı İskeleti

9.3.1.1 - Taşıyıcı duvarların ahşap iskeleti aşağıdaki elemanlardan oluşturulacaktır:

(a) En fazla 1.5 m ara ile konulacak dikmeler,

(b) Dikmelerin altına konulacak taban kiriţleri,

(c) Dikmelerin üstüne konulacak başlık kirişleri,

(d) Dikmeleri duvar boyunca birbirine bağlayarak taban ve başlık kirişleri ile birlikte duvarda dikdörtgen gözler oluşturan yatay ara kiriţler,

(e) Oluţturulan dikdörtgen gözleri üçgen gözlere bölen çaprazlar.

9.3.1.2 - Tek katı ahşap olan binalarda dikmeler, taban ve başlık kirişleri ile çaprazların enkesit boyutları en az 10 cm x 10 cm, ara kirişlerin enkesit boyutları ise en az 5 cm x 10 cm olacaktır.

9.3.1.3 - Her iki katı da ahşap olan binalarda dikmeler, taban ve başlık kirişleri ile çaprazların enkesit boyutları en az 12 cm x 12 cm, ara kirişlerin enkesit boyutları ise en az 6 cm x 12 cm olacaktır.

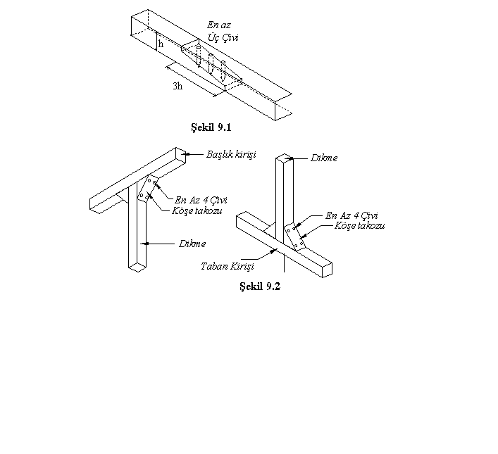
9.3.1.4 - Dikmeler ve çaprazlar tek parçalı olacaktır. Taban kirişleri ile başlık kirişlerinde ise ek yapılabilir. Ancak ekler eğri göğüslü bindirme şeklinde yapılacak, cıvata ya da kiriş kalınlığına eşit boydaki çivilerle bağlanacaktır (Sekil 9.1).

9.3.1.5 - Dikmeler ve çaprazlar, taban kirişine ve başlık kirişine geçmeli olarak birleştirilecek ve ayrıca çivi ile pekiştirilecektir. Geçmeli birleşim yapılmaması durumunda, çivili köşe takozları kullanılacaktır (Sekil 9.2).

9.3.1.6 - Diğer eleman bağlantıları, düz ya da eğri göğüslü zıvana şeklinde yapılacaktır.

9.3.2. Taşıyıcı Duvarların Minimum Toplam Uzunluğu

Planda birbirine dik doğrultuların her biri boyunca uzanan ahşap taşıyıcı duvarların, pencere ve kapı boşlukları hariç olmak üzere, toplam uzunluğunun brüt kat alanına (konsol döşemeler hariç) oranı (0.20 I) m/m2 ’den daha az olmayacaktır. Burada I, Bölüm 6’da tanımlanan Bina Önem Katsayısıdır.

9.3.3. Taşıyıcı Duvarların Maksimum Mesnetlenmemiş Uzunluğu

Herhangi bir taşıyıcı duvarın, planda kendisine dik olarak saplanan taşıyıcı duvar eksenleri arasında kalan mesnetlenmemiş uzunluğu, 4.5 m'yi geçmeyecektir. Aksi durumda dikmeler, en fazla 4.5 m ara ile döşeme kirişlerine veya çatı makaslarına çapraz elemanlarla bağlanacaktır (Sekil 9.3).

9.3.4. Taşıyıcı Duvar Boşlukları

9.3.4.1 - Bina köţesine en yakýn pencere veya kapı boşluğu ile bina köşesi arasında bırakılacak dolu duvar parçasının plandaki uzunluğu 1.5 m’den az olmayacaktır.

9.3.4.2 - Bina köşeleri dışında, pencere ve kapı boşlukları arasında kalan dolu duvar parçalarının plandaki uzunluğu 0.75 m’den az olmayacaktır.

9.3.5. Lentolar ve Hatıllar

9.3.5.1 - Zemin katı yığma kargir olan binaların hatıl ve lentoları Bölüm 10’da verilen kurallara göre yapılacaktır.

9.3.5.2 - Ahşap taşıyıcı duvarlarda kapı üstü lentoları ile pencerelerin alt ve üst lentoları, dikmelerin enkesitinde olacak ve lentoların dikmelere birleşimi geçmeli olarak yapılacaktır.

9.3.6. Duvar Dolgusu ve Kaplaması

9.3.6.1 - Yukarıdaki 9.3.1.1’e göre ahşap taşıyıcı duvarlarda oluşturulan üçgen gözler; hafif tuğla, kerpiç, ahşap yonga veya uygun izolasyon maddeleri ile doldurulacaktır.

9.3.6.2 - Duvar yüzeyleri tahta veya oluklu kaplama malzemesi ile kaplanacak ya da rabits teli, ahşap çıta veya kamış ile kaplanarak sıvanacaktır.
 

9.4. DÖSEMELER VE ÇATILAR

Ahşap binaların döşeme ve çatıları da ahşap olarak yapılacaktır. zemin kattaki döşeme kirişleri taban kirişleri üzerine, diğer katlardaki döşeme kirişleri ve çatı makasları ise başlık kirişleri üzerine oturtulacak, çivili olarak birleţtirilecektir (Sekil 9.4).